Villa a schiera in vendita

Settimo Torinese, Via goito
€ 359.000
7 locali 7 locali
180 Mq 180 Mq
2 bagni 2 bagni

Villa a schiera in vendita

Settimo Torinese, Via goito

Descrizione annuncio

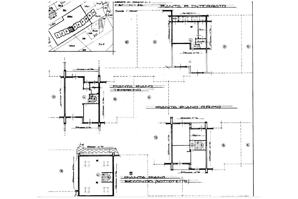
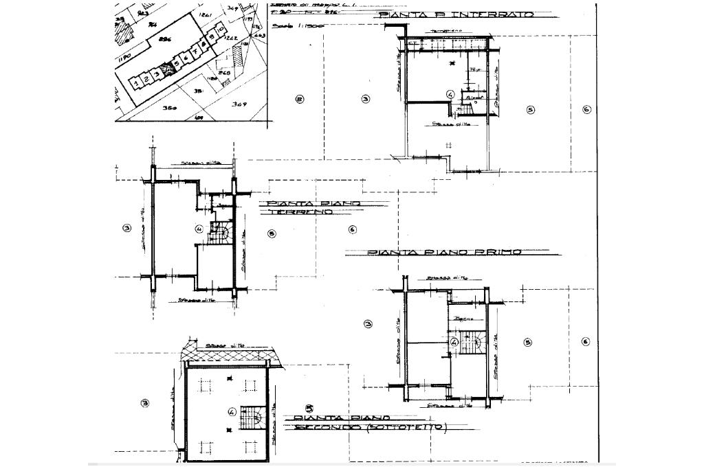
In una dellle zone più richieste di Settimo Torinese, in zona mercato proponiamo in vendita villetta a schiera disposta su 4 livelli, perfetta per famiglie in cerca di comfort e funzionalità.
L'accesso alla proprietà avviene tramite il giardino privato e la soluzione è così composta: accogliente soggiorno doppio, cucina abitabile e bagno di servizio al piano terra con possibilità di accedere al patio pavimentato sul retro dell'abitazione; tramite la scala interna accediamo al primo piano con tre camere da letto di buona metratura e con un ulteriore bagno finestrato; all'ultimo piano, ampio sottotetto da rifnire, ideale come studio, sala hobby/relax. Al piano interrato taverna e box auto doppio in larghezza con doppio basculante, comodo per poter far entrare due macchine.

Il riscaldamento è autonomo.

Mostra tutto

Nelle vicinanze

Trasporto pubblico Trasporto pubblico
Settimo Torinese
Settimo Torinese
820 m
Piazza Mercato
Piazza Mercato
150 m
Ariosto
Ariosto
280 m
Ricariche auto elettriche Ricariche auto elettriche
LIDL Settimo Torinese
1,6 Km
Record Hotel
2,3 Km
Torino Outlet Village
3,0 Km
Scuole Scuole
Scuola Secondaria di 1° grado "Italo Calvino"
470 m
Scuola Primaria "Gianni Rodari"
590 m
Scuola Elementare "Giuseppe Giacosa"
650 m
Scuola Secondaria di 1° grado "Gobetti"
700 m
Scuola Secondaria di primo grado "Piero Gobetti"
720 m
Farmacia Farmacia
Farmacia
390 m
Farmacia Sambuy
2,4 Km
Ospedali Ospedali
Ospedali
1,8 Km
Ospedale Civico di Settimo Torinese
1,8 Km
Supermercati Supermercati
Spada
1,1 Km
Supermercati
1,2 Km
Coop
1,3 Km
Lidl
1,6 Km
Mercatò
1,9 Km
Negozi Negozi
Negozi
1,1 Km
Ki Group
2,6 Km
Timberland
2,9 Km
Nike Factory Store
2,9 Km
Calvin Klein Jeans
2,9 Km
Bar Bar
Bar Luca e Dario
2,6 Km
Bar
2,6 Km
Ristoranti Ristoranti
BEFeD
500 m
Ristorante della suoneria
1,0 Km
Ristorante Bar La Cascinotta
2,1 Km
Bar ristorante Pescarito
2,7 Km
Mostra tutto

Caratteristiche

Rif.:
61125112
Piano:
Su più livelli di 4
Totale piani:
4
Box:
2
Posti auto:
1
Balconi:
1
Mostra tutto
Prezzo Prezzo
€ 359.000
Rata mutuo Rata mutuo
€ 1.659 / mese
Spese annue Spese annue
€ 800
Proponi il tuo prezzoProponi il tuo prezzo

Classe Energetica

F
F
F
F
F
F
F
F
F
EP globale non rinnovabile:
353.89 kW h/m² anno
EP globale rinnovabile:
17.45 kW h/m² anno
EP invernale del fabbricato:
EP estiva del fabbricato:
Anno di costruzione:
1990
Riscaldamento:
Autonomo
Tipo impianto:
A radiatori
Tipo alimentazione:
Metano

Ti interessa visionare l'immobile?

Fissa un appuntamento  Fissa un appuntamento

Richiedi informazioni

* Questi campi sono obbligatori

Calcola il tuo mutuo

Semplice e senza impegno
Anticipo

( % )
Mutuo

( % )

pochi semplici passi

inserisci i tuoi dati
Questionario completato
Grazie per aver richiesto un appuntamento senza impegno con un nostro Consulente del Credito e Assicurativo.

Hai inserito correttamente tutti i dati necessari e a breve riceverai una e-mail con un link da convalidare per inviare i tuoi dati.
Affiliato
Studio Settimo Centro Sas
Via Roma, 1 10036 Settimo Torinese (TO)

Il nostro staff


  • Daniele Spagnolo
    Affiliato

  • Sara Zanierato
    Coordinatrice
Via Roma, 1 10036 Settimo Torinese (TO)
Zona: Settimo Torinese Centro
Mostra su mappa
Affiliato
Studio Settimo Centro Sas
Via Roma, 1 10036 Settimo Torinese (TO)

2025 Tecnocasa Franchising S.p.A. - P. IVA 08365160152 - Via Monte Bianco 60/A 20089 Rozzano (MI). Ogni agenzia ha un proprio titolare ed è autonoma. Privacy policy | Policy utilizzo | Cookie policy