Casa indipendente in vendita

Settimo Torinese, Viale Piave - Centro - Settimo Torinese
€ 299.000
6 locali 6 locali
243 Mq 243 Mq
1 bagno 1 bagno

Casa indipendente in vendita

Settimo Torinese, Viale Piave - Centro - Settimo Torinese

Descrizione annuncio

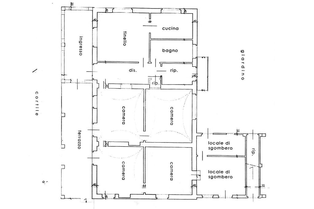
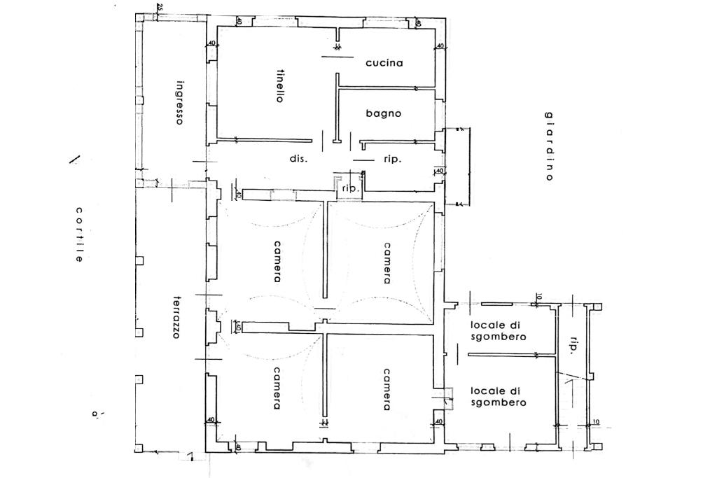
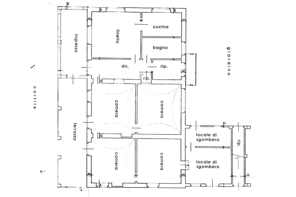
Nel cuore di Settimo Torinese, in posizione comoda a tutti i servizi, proponiamo in vendita una casa indipendente libera su quattro lati, disposta su un unico livello di circa 160 mq calpestabili, oltre 170 mq utilizzabili come locali accessori siti al primo piano con accesso indipendente, perfetti per creare zone relax o studi professionali. L’immobile è circondato da verde privato che dona riservatezza in ogni lato della casa, frontalmente si sviluppa il cortile pavimentato in pietra mentre nel retro della casa vi è il giardino privato di oltre mille mq che dona spazio, tranquillità e infinite possibilità di personalizzazione per vivere la casa anche all’esterno.
L'immobile, da ristrutturare, offre un grande potenziale per chi cerca una soluzione personalizzabile in una posizione centrale ma tranquilla, con ottimo livello di privacy.

La metratura generosa e la possibilità di due accessi indipendenti rendono possibile la realizzazione di una bifamiliare.

Un'opportunità unica per chi desidera una casa indipendente nella zona centrale della città, con la libertà di progettarla su misura.

Mostra tutto

Nelle vicinanze

Trasporto pubblico Trasporto pubblico
Settimo Torinese
Settimo Torinese
470 m
Chiomo
Chiomo
120 m
Vittorio Veneto
Vittorio Veneto
150 m
Ricariche auto elettriche Ricariche auto elettriche
LIDL Settimo Torinese
1,2 Km
Record Hotel
1,8 Km
Torino Outlet Village
2,6 Km
Evway Settimo Cielo Retail Park
2,9 Km
Scuole Scuole
Scuola Primaria "Gianni Rodari"
340 m
Scuola Secondaria di 1° grado "Italo Calvino"
370 m
Scuola Elementare "Giuseppe Giacosa"
510 m
Scuola Secondaria di 1° grado "Gobetti"
710 m
Scuola Secondaria di primo grado "Piero Gobetti"
730 m
Farmacia Farmacia
Farmacia
100 m
Farmacia Sambuy
2,7 Km
Nat & Bio
2,9 Km
Ospedali Ospedali
Ospedale Civico di Settimo Torinese
1,6 Km
Ospedali
1,6 Km
Supermercati Supermercati
Spada
670 m
Coop
860 m
Supermercati
980 m
Lidl
1,2 Km
Mercatò
1,5 Km
Negozi Negozi
Negozi
630 m
Ki Group
2,3 Km
Timberland
2,5 Km
Nike Factory Store
2,5 Km
Pepe Jeans
2,5 Km
Bar Bar
Bar Luca e Dario
2,1 Km
Bar
2,6 Km
Ristoranti Ristoranti
BEFeD
830 m
Ristorante della suoneria
980 m
Ristorante Bar La Cascinotta
1,7 Km
Bar ristorante Pescarito
2,6 Km
Seven Village
2,7 Km
Mostra tutto

Caratteristiche

Rif.:
61117773
Piano:
Terra con giardino di 1
Totale piani:
1
Posti auto:
3
Balconi:
1
Terrazzi:
1
Mostra tutto
Prezzo Prezzo
€ 299.000
Rata mutuo Rata mutuo
€ 1.410 / mese
Spese annue Spese annue
€ 0
Proponi il tuo prezzoProponi il tuo prezzo
Immobile valutato con T·Valuta

Classe Energetica

G
G
G
G
G
G
G
G
G
EP globale non rinnovabile:
363.45 kW h/m² anno
EP globale rinnovabile:
16.85 kW h/m² anno
EP invernale del fabbricato:
EP estiva del fabbricato:
Anno di costruzione:
1920
Riscaldamento:
Autonomo
Tipo impianto:
A radiatori
Tipo alimentazione:
Metano

Ti interessa visionare l'immobile?

Fissa un appuntamento  Fissa un appuntamento

Richiedi informazioni

Clicca su Leggi per aprire l'informativa
* Questi campi sono obbligatori

Calcola il tuo mutuo

Semplice e senza impegno
Anticipo

( % )
Mutuo

( % )

pochi semplici passi

inserisci i tuoi dati
Questionario completato
Grazie per aver richiesto un appuntamento senza impegno con un nostro Consulente del Credito e Assicurativo.

Hai inserito correttamente tutti i dati necessari e a breve riceverai una e-mail con un link da convalidare per inviare i tuoi dati.
Affiliato
Studio Settimo Centro Sas
Via Roma, 1 10036 Settimo Torinese (TO)

Il nostro staff


  • Daniele Spagnolo
    Affiliato

  • Sara Zanierato
    Coordinatrice
Via Roma, 1 10036 Settimo Torinese (TO)
Zona: Settimo Torinese Centro
Mostra su mappa
Affiliato
Studio Settimo Centro Sas
Via Roma, 1 10036 Settimo Torinese (TO)

2025 Tecnocasa Franchising S.p.A. - P. IVA 08365160152 - Via Monte Bianco 60/A 20089 Rozzano (MI). Ogni agenzia ha un proprio titolare ed è autonoma. Privacy policy | Policy utilizzo | Cookie policy